Bayer Blue Castle Zambia

  • Date of Steelwork Completion
    2024-10-01
Project Type
Project Team Interview Case Study
Location
Steel Profiles Used
  • Date of Steelwork Completion
    2024-10-01
  • Tonnage
    527
Metal Cladding and Roofing Overview
  • Date of Cladding Completion
    2024-12-02
  • Cladding Tonnage
    120
  • Cladding Area Coverage (m2)
    22000
Project Overview

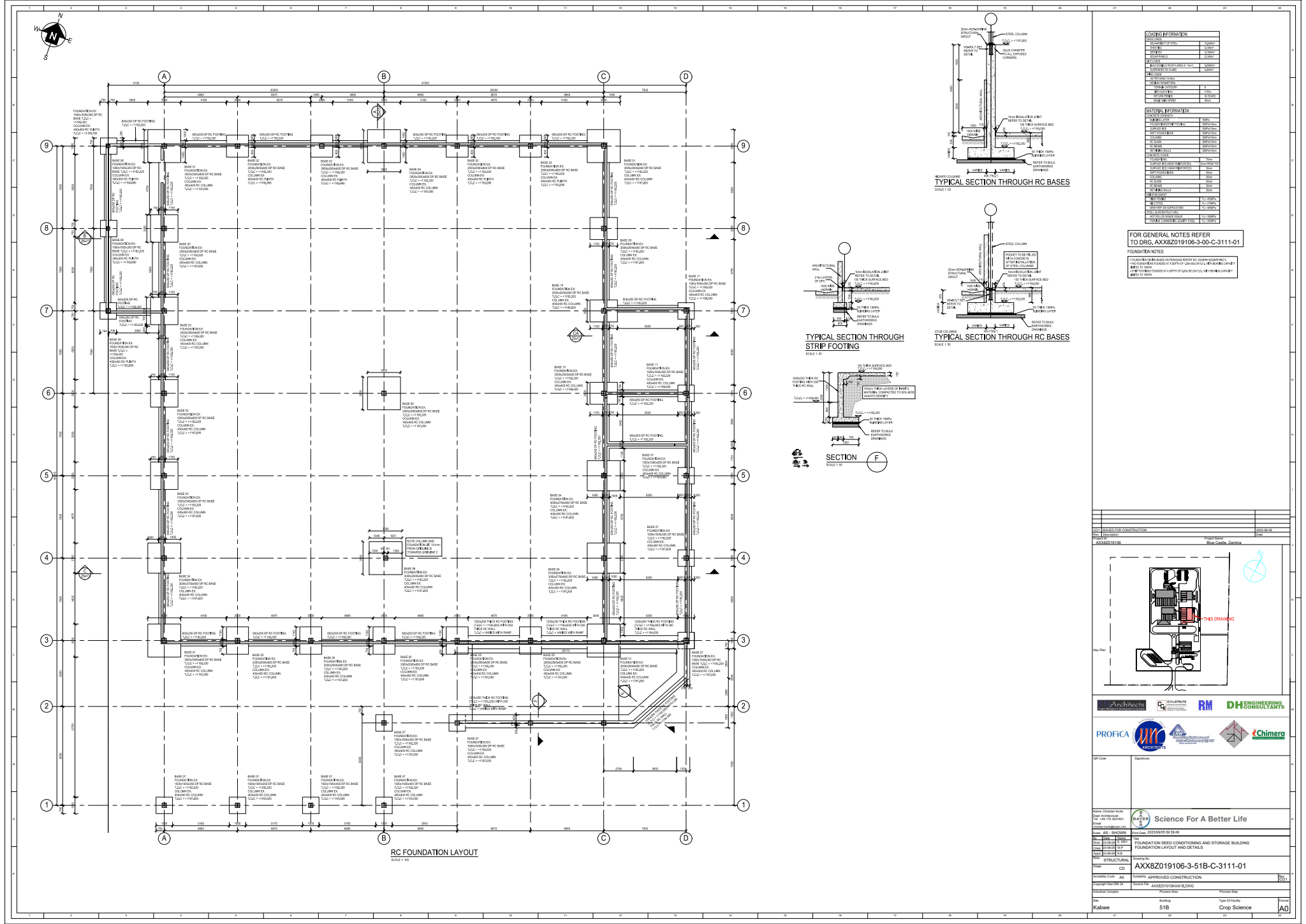
The warehouse buildings are braced frames with girders spanning between gable ends and supported with columns at intervals midspan. The trusses are in turn supported by the girders and columns. The administration buildings are portal frames structures with brickwork cladding. The utility buildings consists of truss and girders supported on columns. Mechanicla platforms consists of columns and beams, with moment connections and bracing.

Project Details
Fabrication took place in South Africa.
Trusses were assembled and "boxed" on site by installing lipped channel, sag struts and knees before lifting into air. This approach reduced installation of steel in the air, reduced cherry picker requirement on site and improved overall safety and install-ability of steel.
Large cantilever canopies at loading area. The canopy sheeting had to match the other canopies and buildings, and required a ridge sloping towards the edges. Trusses and girders were used to achieve this and struts introduced to support the 8m canopies. The main support columns for the building was sized for the additional loads. The loading dock at building 51B did not allow for a support column, and the roof was cantilevered 7.5m from both directions. The site is remote and everything required, tools, material etc were imported from South Africa. It was a multi-disciplinary project with concrete teams, steel erectors, electrical installers, mechanical fitters, plumbers all working together.
Testimonials

Dealing with dynamic loadings and modelling it in detail to ensure required structural performance between different parts is commendable.