New Orleans Primary School

Project Type
Project Team Interview Case Study
Location
Metal Cladding and Roofing Overview
  • Date of Cladding Completion
    2024-06-04
  • Material Used
    0.53mm Colorplus AZ150
  • Cladding Tonnage
    21
  • Cladding Area Coverage (m2)
    3683
Light Steel Frame Building Overview
  • Date of LSFB Completion
    2024-05-24
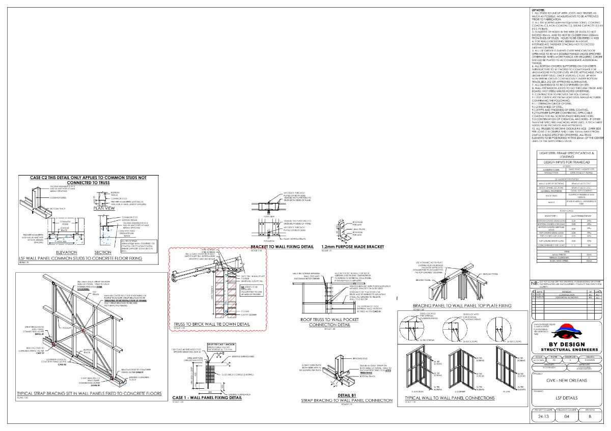
  • Materials Used
    Profiles used - 0.8mm G550 Z275 – 89 x 41mm, Fasteners used - 323 213 - #12 x 22, Strap Bracing - 2000 Linear Meters, T-Grip Brackets - 3106
  • Cladding Tonnage
    45
Project Overview

The Western Cape Education Department (WCED) required a solution for a condemned 1973 school in Paarl, originally built with shutter ply walls, steel windows, wooden trusses, and asbestos roofing. The building was end-of-life and unsafe. The brief required reuse of existing foundations if possible, rapid delivery to return learners, cost-effective

Project Details
CAD and frameCAD roll-forming, sequenced prefabricated panels, custom epoxy/threaded rod anchoring, specialist teams for each construction stage.
Design changes resolved with quick engineer approval, electrical delays managed via coordination, weather risks mitigated by early roofing. Phased demolition/erection avoided large open construction zones, reduced heavy vehicle movements.
Benefits of Steel in this Application

Lightweight enabled foundation reuse, fast precise construction, adaptable to changes, high strength-to-weight ratio.

Testimonials

The typical covered walkway roof portion is nicely integrated into the roof truss as a cantilever - well done to do away with more external columns that would have added to maintenance over long term.