Sasol/Wood: CF 2

Project Type
Project Team Interview Case Study
Location
Steel Profiles Used
  • Tonnage
    1110
Project Overview

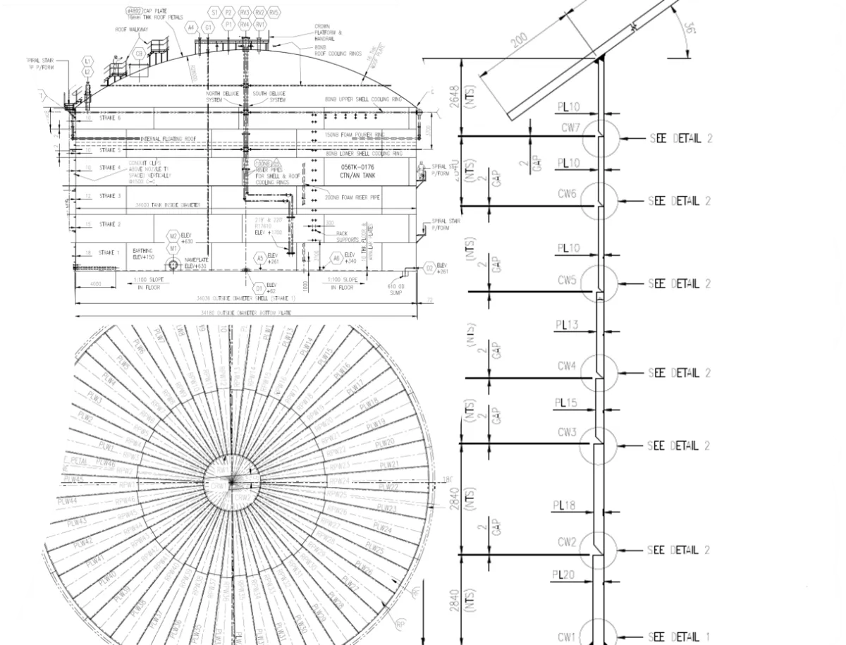
PHASE 1 – Design, procure, prefabrication, corrosion protection and delivery of five (5) Ø 34 000 Carbon steel aboveground steel storage tanks per API 650 code of construction.

PHASE 2 – For the erection, testing, and corrosion protection of the same, including two (2) steel self-supporting dome roofs and three (3) aluminium domes c/w internal floating roofs.

Project Details
Fabrication involved rolling large plates, manufacturing nozzles, stairways, and platforms; erection used tank jacking technology.
Challenges included rolling large plates, high winds, and flexible roof petal handling.
Testimonials

The Aluminium roofs are spectacular.