The Blessed Generation Church

  • Date of Steelwork Completion
    2024-11-20
Project Type
Location
Steel Profiles Used
  • Date of Steelwork Completion
    2024-11-20
  • Tonnage
    14
Metal Cladding and Roofing Overview
  • Date of Cladding Completion
    2024-11-30
  • Cladding Tonnage
    7
  • Cladding Area Coverage (m2)
    1300
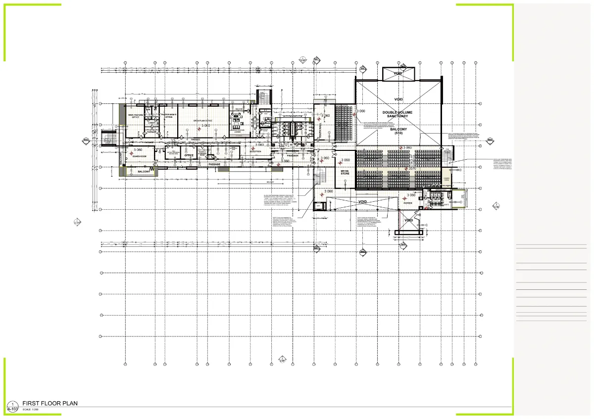
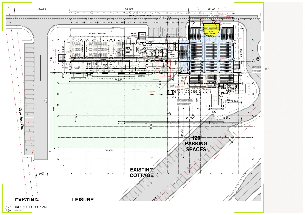
Project Overview

Create a modern, functional sacred space that reflects the church's values of strength, unity, and community impact while being cost-effective and future-ready. Lightweight steel trusses using USC 140x1.6mm chords and USW 76mm struts with comprehensive bracing to span the open sanctuary. 11 tons total over 1850m².

Project Details
Crane access constraints and wall inconsistencies handled through careful planning and flexible on-site responses.
Benefits of Steel in this Application

Steel allowed us to span large open areas with lightweight components while maintaining strength and durability. It made installation quicker, adjustments easier, and kept the overall structure clean, modern, and cost-effective.