Thungela Elders 1000 Ton Truck Loading Station Bin

  • Date of Steelwork Completion
    2024-07-01
Project Type
Project Team Interview Case Study
Location
Steel Profiles Used
  • Date of Steelwork Completion
    2024-07-01
  • Tonnage
    417
Project Overview

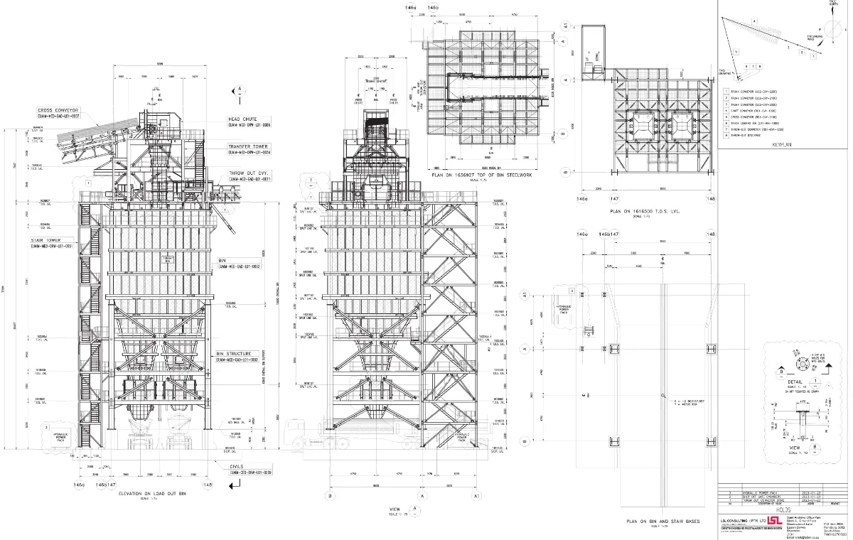
The Elders truck loading station is designed to profile load -250mm ROM coal into either 40 ton or 50 ton payload side tipping tandem interlink trucks via two parallel truck loading bays. Trucks can be loaded and dispatched at a rate of 34trucks/hour. Truck payloads are verified at road weigh bridges prior to despatch from Elders. A Throw-Out Conve

Project Details
All items are fabricated to minimise abnormal load transportation to site. 2.4m High bin sections were selected to align with the standard available sheet width. This also corresponded to the transportation requirements. The sections were tack welded together, inspected and approved by Thungela independent QA team before being welded together. Due
The risk of truck impact with the structural steel bin support structure was identified as a risk at the early stages of the project. To mitigate this risk heavy reinforced concrete walls were incorporated in the concrete columns that supported the structural steel columns.
Benefits of Steel in this Application

Steel, when designed in an optimal manner, serves to create high-strength, lightweight structural systems. This bin with its high material loading can be economically designed using normal structural steel. Special steel liners (400 brinell) can easily be fitted and replaced through wall of the bin and chutes. Steel provides flexibility in multiple categories, including literal flexibility (elasticity/plasticity), complex geometry (curves, multi-planar arrangements, connection methods - welding/bolting etc., and the ability to create an almost infinite set of geometries using a relatively small set of standard elements/sizes). This structure shows almost all of the benefits of steel (strength-to-weight ratio, flexibility, accommodation of many possible coating systems and ultimately, the ability to suit a complex set of design, manufacturing, construction and layout requirements). A layout of this complexity would not otherwise be possible, were it not for this material. Finally, while this structure is not designed for aesthetic purposes in the traditional, non-technical sense of the word, to those individuals who understand what this structure represents, its function and the effort required to produce it, it is beautiful in a way that the average person would easily overlook.

Testimonials

Great mining project, displaying meticulous coordination, planning and attention to detail.