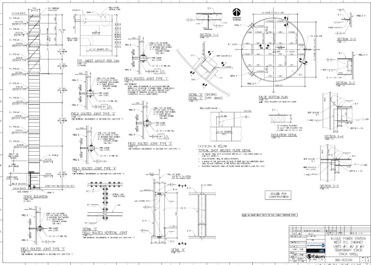
West Chimney Repairs and Related Works at Kusile Power Station

Project Type